U gebruikt een verouderde internetbrowser.
We raden u aan om de meest recente internetbrowser te installeren voor de beste weergave van deze website.
Een internetbrowser die up to date is, staat ook garant voor veilig surfen.

Trichterheideweg 11, 3500 Hasselt
Huurprijs: € 2.413

Omschrijving

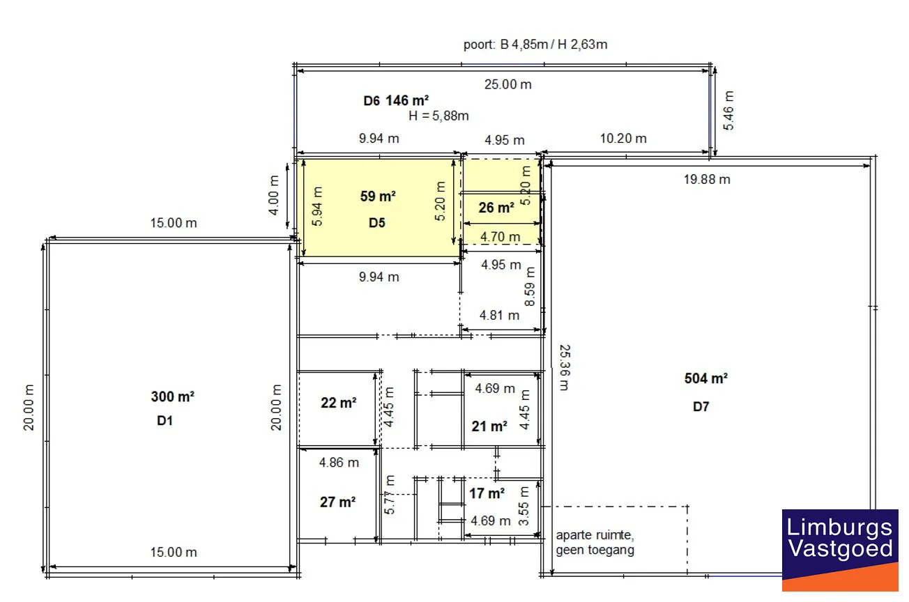
LAREGO - KMO UNIT D1 - 300m² binnen + 600m² buiten - a/d voormalige Carglass Site

LAREGO - KMO UNIT D1 - 300m² binnenruimte + 600m² buitenruimte - Bedrijvenpark "LAREGO", gelegen op de voormalige site van Carglass. Deze indrukwekkende site van 17.000 m² groot is gelegen tussen de Hasseltse Ring en het Albertkanaal, op amper 5,4 km van de op- en afrit E313, 2,3 km van het station en bushalte op 130 m.

De opslagruimte biedt in totaal 900 m², waarvan 300 m² binnenruimte en 600 m² buitenruimte. De unit is ideaal voor opslag, lichte productie of als uitvalsbasis voor aannemers of bouwbedrijven. De binnenruimte beschikt over 3 sectionaalpoorten, een vrije hoogte van 6 meter, veel natuurlijk daglicht en een functionele, onderhoudsvriendelijke betonvloer. De buitenruimte is geschikt voor stockage, parkeren of laden en lossen.
Huurprijs € 2.210,-/maand (€ 1.490,- voor de unit + € 720,- voor buitenruimte)

️ Troeven
•⁠ ⁠900 m² totaal (300 m² binnen + 600 m² buiten)
•⁠ ⁠Instapklaar en recent gerenoveerd
•⁠ ⁠Zonnepanelen op de site
•⁠ ⁠3 sectionaal poorten
•⁠ ⁠6 meter vrije hoogte
•⁠ ⁠Camerabewaking aanwezig
•⁠ ⁠Betonvloer met hoge draagkracht
•⁠ ⁠220V en 380V aansluiting
•⁠ ⁠Gemeenschappelijke toiletten
•⁠ ⁠24/7 toegankelijk
•⁠ ⁠Flexibele kantoorruimte beschikbaar elders op de site

Voor meer info/indelingsplannen/bezichtiging bel Dario op 0472/09.27.56 of 011/22.19.17 - dario@limburgsvastgoed.be of kijk op www.limburgsvastgoed.be


Kenmerken

Algemeen

Adres:Trichterheideweg 11
Hasselt
Referentie:DP - 5153210
Huurprijs:€ 2.413
Type:Opslagruimte
Beschikbaar vanaf:Onmiddellijk
Perceeloppervlakte:900 m²
Bebouwde opp.:300 m²
Verhuurbare vloeroppervlakte:300 m²

Indeling


Bedrijfshal:
Oppervlakte:300 m²
Vrije hoogte:6 m
Vloerbelasting begane grond:3000,00 kg

Informatieplicht

Stedenbouwkundige vergunning:Ja
Voorkooprecht:Neen
Verkavelingsvergunning van toepassing:Neen
Stedenbouwkundige bestemming:Industriegebied voor ambachtelijke bedrijven of gebieden voor kleine en middelgrote ondernemingen
Dagvaarding en herstelvordering:Geen rechterlijke herstelmaatregel of bestuurlijke maatregel opgelegd
Overstromingsgevoelig:Niet meegedeeld
Overstromingsgebied:Niet meegedeeld
Overstromingskans perceel (P-score):  D
Overstromingskans gebouw (G-score):  D
Erfgoed:Niet meegedeeld

Ligging

Streetview

Graag een afspraak of vragen?

Vul onderstaand formulier in en wij contacteren u zo snel mogelijk.


U moet akkoord gaan met het privacybeleid van deze website
* Verplicht in te vullen
Dario Paesen

Dario Paesen

Met een palmares van 15 jaar ervaring als ondernemer/werknemer, en een enorm netwerkwerk in de horeca, catering en eventsector was het slechts een kleine stap naar zijn droom-job en bestemming, de vastgoedwereld! Omgaan met moeilijke complexe situaties, duidelijke en correcte afspraken maken, cliënteel optimaal informeren en bijstaan, staat bij Dario hoog in het vaandel. Contacteer hem voor een vrijblijvende waarde raming van uw eigendom of gewoon voor een kennismakingsgesprek, of een professioneel advies in het kader van de verkoop van  uw eigendom.

Bedrijfsvastgoed verkopen of verhuren? Ook daarvoor zal Dario u met plezier en raad en daad willen bijstaan.
0472/09.27.56

NIET GEVONDEN WAT U ZOCHT?

Schrijf u dan vrijblijvend in en blijf als allereerste op de hoogte van nieuwe panden die voldoen aan uw zoekcriteria.
Schrijf u in
Terug naar boven
Sluit menu Limburgs Vastgoed